Old Meadow Walk, Wishaw, Lanarkshire
Price.
Features.
- Keepmoat Development
- Semi Detached
- Three Bedrooms
- Master En-Suite
- Dining Kitchen
- Ground Floor WC
- Utility Room
- Rear Solar Panels
- Double Glazed Windows
- Enclosed Rear Garden/Driveway
Rooms.
- 3 Bedrooms
- 2 Bathrooms
- 1 Receptions
Media.
- Floorplans
- Brochure
- EPCs
- Video Tour
Enquire.
- We are currently not taking enquiries for this property.
Old Meadow Walk, Wishaw, Lanarkshire
Description.
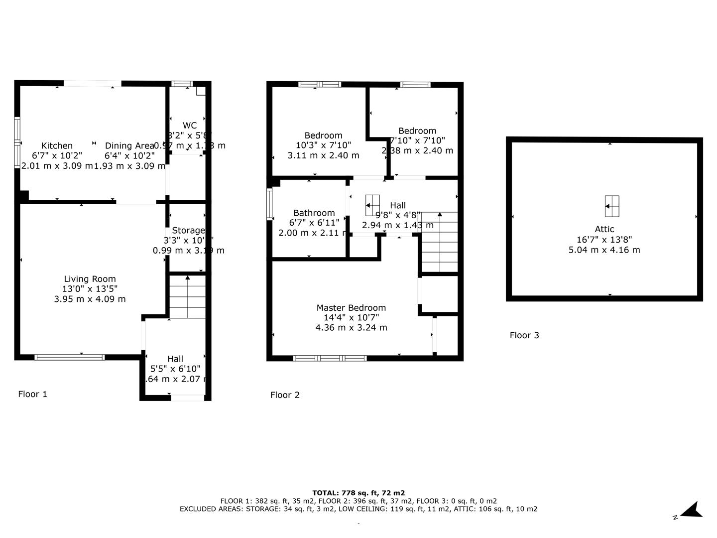
The ground floor of the property comprises of a welcoming entrance, a bright and airy lounge with laminate flooring and front facing window allowing for plenty of natural light, a modern fully fitted dining kitchen with French doors leading out to the rear garden, a separate utility area and a ground floor W.C. The upper floor consists of a landing area, three bedrooms all of which are carpeted throughout with ample storage space. The master bedroom benefits from built-in mirrored wardrobes, providing additional convenience. Completing the floor is a stylish part tiled family bathroom consisting of WC, sink and bath with overhead shower.
The property is further enhanced with gas central heating, double glazed windows and solar panels. There is off-street parking with a driveway to the side of the property and a generously sized rear garden which is fully enclosed and hosts a slabbed patio with a separate raised decked area.
Wishaw offers a great selection of shops, bars, restaurants and leisure facilities. The home is well-connected with excellent local amenities, schools, and public transport links. The M74/M8 motorway is just a short drive away, providing easy access to Glasgow and Edinburgh.
Property Location.
- 9, Old Meadow Walk, Wishaw
- Wishaw
- Lanarkshire
- ML2 7FD
Similar Properties.
