John Muir Way, Motherwell
Price.
Features.
- Dalziel Catchment Area
- Our Lady's Catchment Area
- Front Facing Lounge
- Modern Fitted Kitchen / Dining
- Four Bedrooms
- Master En-Suite
- Ground Floor WC
- Driveway
- Well Maintained Residential Development
- Fully Enclosed Landscaped Rear Garden
Rooms.
- 4 Bedrooms
- 3 Bathrooms
- 1 Receptions
Media.
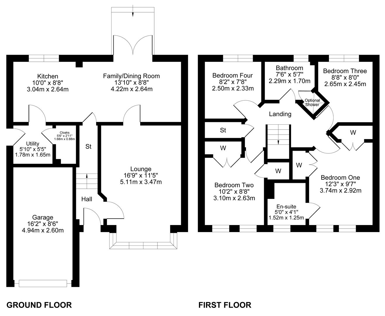
- Floorplans
- Brochure
- EPCs
- Video Tour
Enquire.
- We are currently not taking enquiries for this property.
John Muir Way, Motherwell
Description.
This beautiful detached property has been finished to a high standard throughout . On the ground floor the property offers a large and airy front facing lounge, a very generously sized dining kitchen with French doors leading out to the rear garden, a utility room and a WC. Upstairs, there are four bedrooms and a family bathroom finished with quality wall and floor tiling. The master bedroom is extremely generously sized and provides built in wardrobes and an en suite bathroom.
The property occupies a substantial plot and provides large grounds to the front and rear. The rear garden is fully enclosed and features decked and slabbed patio areas and separate turfed section ideal for kids. To the front of the property there is a double car driveway providing ample off street parking and an integral garage.
This beautiful property falls within the catchment area for Dalziel High School which is one the most highly regarded schools in Lanarkshire. The sought after area of Motherwell offers a great selection of bars, restaurants and leisure facilities. It is perfectly located for the commuter, with the M74 providing convenient access to the central belt. The town also offers excellent public transport, with train and bus services providing links to the surrounding areas.
Property Location.
- 117, John Muir Way
- Motherwell
- ML1 3GW
Similar Properties.
