Dalzell Drive, Motherwell
Price.
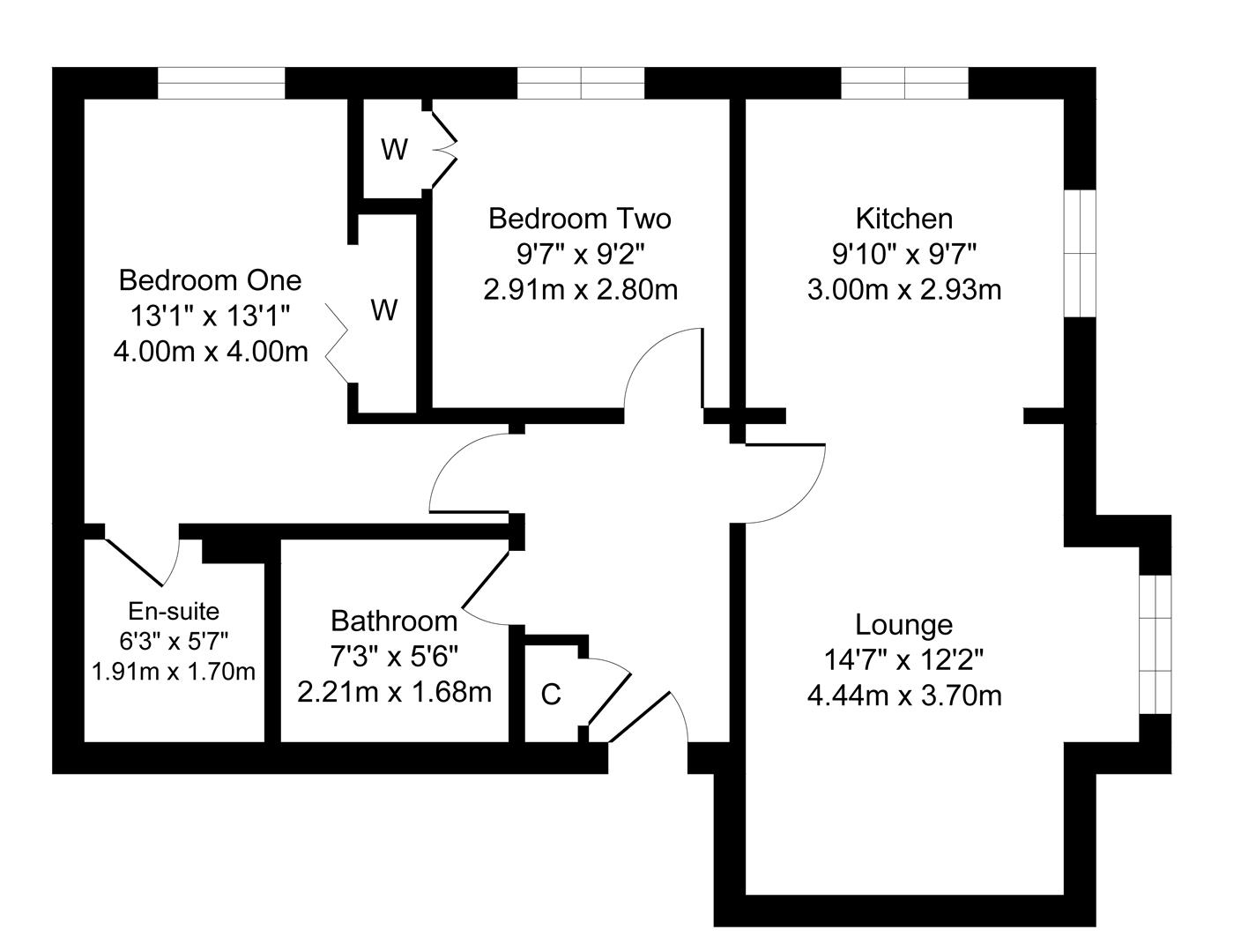
Features.
- First Floor Flat
- Two Bedrooms
- Modern Open Plan Lounge/Kitchen
- Family Bathroom
- Master En-Suite
- Gas Central Heating
- Double Glazed Windows
- Secure Door Entry
- Residents Parking
Rooms.
- 2 Bedrooms
- 2 Bathrooms
- 1 Receptions
Media.
- Floorplans
- Brochure
- EPCs
- Video Tour
Enquire.
- We are currently not taking enquiries for this property.
Dalzell Drive, Motherwell
Description.
The property comprises of an entrance hall leading through to a beautifully presented open plan lounge with laminate flooring, a modern kitchen with fitted wall and floor mounted units and built in oven/gas hob, a stylish part tiled family bathroom with three piece suite consisting of WC, wash hand basin and bath with overhead shower. Two bedrooms, both of which have carpeted flooring with the master boasting an en-suite shower room .
The property is further enhanced with gas central heating, double glazed windows, residents parking to the front and secure door entry.
Motherwell offers a great selection of shops, bars, restaurants and leisure facilities. It is perfectly located for the commuter, with the M74 & M8 providing convenient access to the central belt. The town also offers excellent public transport, with train and bus services providing links to the surrounding areas.
Property Location.
- 58, Dalzell Drive
- Motherwell
- ML1 2DA
Similar Properties.
