Craigtower Road, Motherwell
Price.
Features.
- Semi Detached
- Three Bedrooms
- Front Facing Lounge
- Modern Fitted Kitchen
- Family Bathroom
- En-Suite
- Ground Floor WC
- French Doors
- Rear Enclosed Landscaped Garden
- Driveway
Rooms.
- 3 Bedrooms
- 3 Bathrooms
- 2 Receptions
Media.
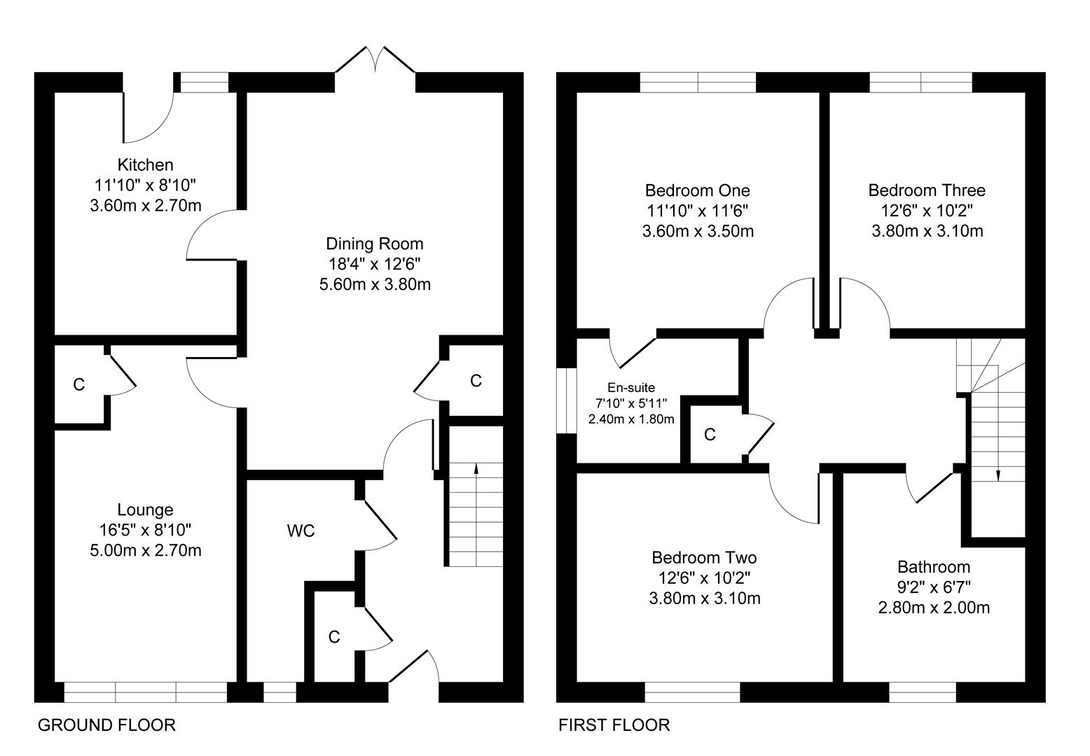
- Floorplans
- Brochure
- EPCs
- Video Tour
Enquire.
- We are currently not taking enquiries for this property.
Craigtower Road, Motherwell
Description.
Set over two levels with the ground floor comprising of a welcoming entrance hallway, a front facing lounge with carpeted flooring, a stunning kitchen with fitted floor and wall mounted units, integrated appliances with eye level oven and a bright spacious dining room with laminate flooring and French doors leading out to the rear garden. Completing the round floor is cloakroom WC. On the upper level you will find a lovely partly tiled three piece family bathroom consisting of WC, sink and bath with overhead shower, three well proportioned bedrooms with the master bedroom enjoying an en-suite shower room and modern fitted wardrobes.
The property is further enhanced with gas central heating, double glazing, monoblock driveway and solar panels. The rear enclosed garden has a paved patio with fitted pergola and an artificial lawn area.
Motherwell offers a great selection of shops, bars, restaurants and leisure facilities. It is perfectly located for the commuter, with the M74 & M8 providing convenient access to the central belt. The town also offers excellent public transport, with train and bus services providing links to the surrounding areas.
Property Location.
- 27, Craigtower Road
- Motherwell
- ML1 2UJ
Similar Properties.
