Craigmill Place, Motherwell
Price.
Features.
- Built By Barrett Homes Circa 2021
- Three Bedrooms
- Beautifully Beautfully
- Stunning Dining Kitchen
- Ground Floor W.C
- En Suite Bathroom
- Enclosed Rear Garden
- Dalziel Catchment Area
Rooms.
- 3 Bedrooms
- 3 Bathrooms
- 1 Receptions
Media.
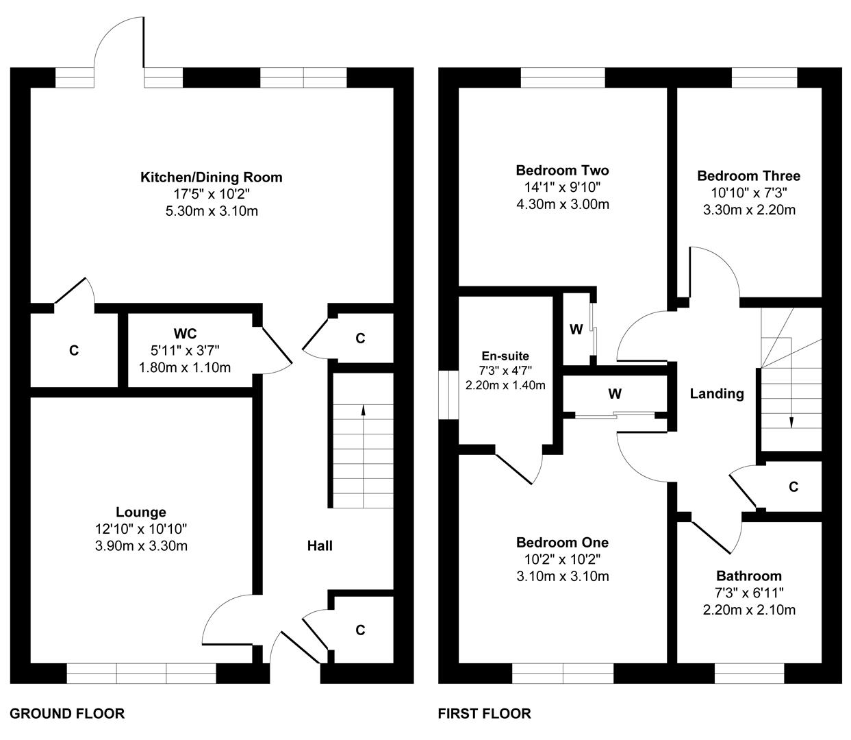
- Floorplans
- Brochure
- EPCs
- Video Tour
Enquire.
- We are currently not taking enquiries for this property.
Craigmill Place, Motherwell
Description.
The property has been successfully and tastefully upgraded by the current owner to create this exceptional family home. The accommodation is well proportioned and is finished to a high standard throughout. The ground floor provides a large and airy lounge, contemporary dining kitchen which overlooks the generously sized rear garden and a tiled W.C. Upstairs, there are three good sized bedrooms and a family bathroom. The two larger bedrooms both provide fitted mirrored wardrobes and the master bedroom also hosts a stylish en-suite bathroom.
The property has a driveway to the side which comfortably park two cars and a generously sized and fully enclosed rear garden which provideds a slabbed patio area and large turfed section.
Motherwell offers a great selection of shops, bars, restaurants and leisure facilities. The property falls within the desirable school catchment area for Dalziel High School as well as being perfectly located for the commuter, with the M74 providing convenient access to the central belt. The town also offers excellent public transport, with train and bus services providing links to the surrounding areas.
Property Location.
- 6, Craigmill Place
- Motherwell
- ML1 2GD
Similar Properties.
